FERRAN MUÑOZ

Portrait of FERRAN MUÑOZ
2025

Ferran Muñoz street in Begues, Barcelona

First prize in competition

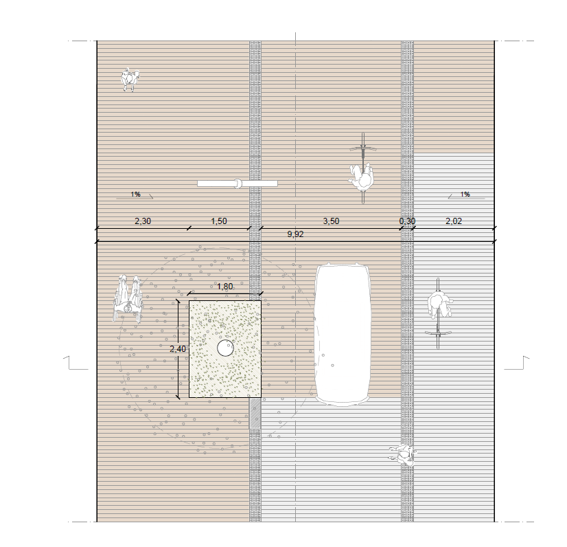
The proposal presents a new cross-section on a single platform for the two street segments covered by the project. The goal is to prioritize pedestrian use by designing a street with a more pleasant layout and better accessibility conditions, incorporating trees to ensure shade during hot periods.

An asymmetrical cross-section is proposed with large tree pits located on the south side, at a distance of 2.30-2.40 meters from the facade line, measuring 1.50 x 2.40 meters. Along the same line as the trees, the new public lighting is situated.

Portrait of FERRAN MUÑOZ
Portrait of FERRAN MUÑOZ Portrait of FERRAN MUÑOZ
Sheet
Public developer
Typology Public space
Area 1.500 m²
Developer Àrea Metropolitana de Barcelona - Ajuntament de Begues
Author Ada Sánchez Arcusa
+ Dinàmica Team Marta Gallart
+ Collaborators cvc ingenieros (instalaciones, estructura y control de costes)
← Back